Обяви За нас Контакти
Продава 2-СТАЕН
град Пловдив, Въстанически
Южен
88 920 €
173 912.40 лв.

(1 289 €, 2 521.06 лв./m2)
Цената е с включено ДДС
История на цената
Коригирана в 19:55 на 13 юли, 2025 год.
Обявата е посетена 192 пъти.
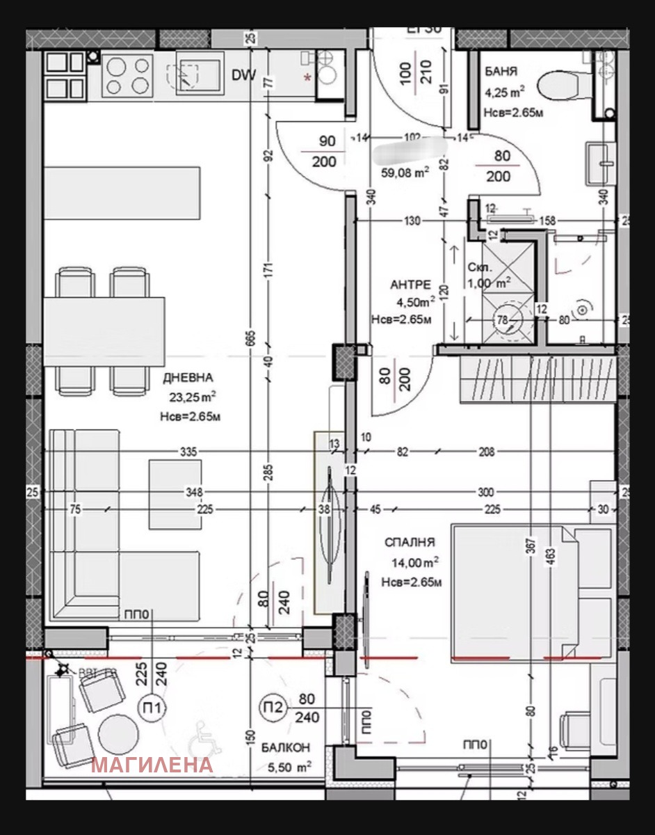
Площ:
69 m2
Строителство:
Тухла,

Описание на имота:


Нов двустаен апартамент. Луксозна новострояща се сграда, намираща се в р-н Южен. Комуникативно място. Среден етаж. Апартаментът се състои хол с бокс, спалня, баня и тоалетна, склад, тераса. Гъвкава схема на плащане според клиента. Възможност за закупуване на паркомясто.За контакти 0878380676.
Особености
Тухла
Асансьор
Саниран
За контакт:
0878380676

Този имот се предлага само на частни лица
Брокер:
Ванина Димитрова
0878380676
Още оферти от брокера: Продава | Дава под наем | Купува | Наема
Агенция:
МАГИЛЕНА
0878/380676
Медал за прослужено време
В imot.bg от 2002 г.
magilena.imot.bg
Адрес:
област Пловдив, гр. Пловдив, ул. Братя Пулиеви, 4, ет.1 офис 104
http://
ИЗПРАТИ ЗАПИТВАНЕ
ИЗПРАТИ ЗАПИТВАНЕТО

Продава 2-СТАЕН
град Пловдив, Въстанически
Южен
Обява: 1b174369517576110

88 920 €
173 912.40 лв.
История на цената
(1 289 €, 2 521.06 лв./m2)

Цената е с включено ДДС
ЗАПАЗИ ОБЯВАТА

Местоположение: град Пловдив, Въстанически, Южен

Допълнителни данни за имотите в района и сравнение с други райони

Покажи

Период

* Средните цени са определени чрез медианна стойност